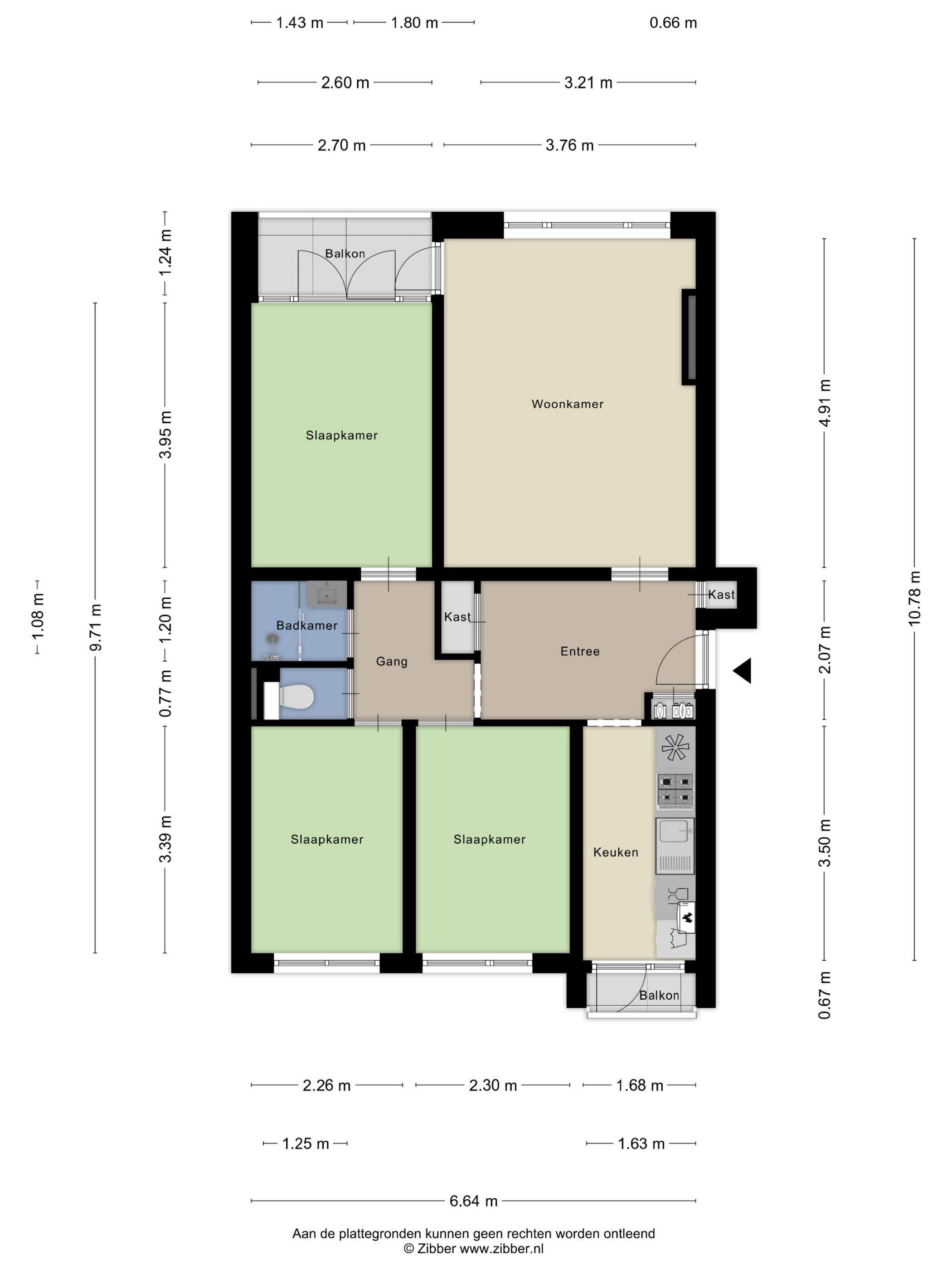
Living area
About 69 m²
Contents
About 227 m³
Construction year
Built in 1956
Number of rooms
4 rooms (3 bedrooms)

Burgemeester Bloemersweg 42 3

6823 BW, Arnhem (Gelderland)

Are you looking for a place in Arnhem near green spaces, close to exit roads, and where you can easily get around?

This starter clear 4-room apartment with 2 balconies on the Burgemeester Bloemersweg in Arnhem is exactly what you are looking for.
A modern kitchen, a sleek bathroom and 3 spacious bedrooms provide plenty of comfort and style. In addition, there is access from the living room and bedroom to a sunny balcony with fantastic views. Furthermore, in the basement there is ample enclosed storage space. At the end of the street you can walk up Hoogte 80 with a great view over the city and continue on to park Klarenbeek.

You enter through the main entrance on the ground floor.
Here you take the stairs down to the locked storage for bikes or other items, and the stairs up to reach the apartment.

On the third floor, you enter a spacious 4-room apartment with access to the meter cupboard, storage space and a separate toilet area. The bathroom is modern and fully equipped, featuring a walk-in shower and stylish washbasin furniture. The kitchen is modern, fitted with built-in appliances and practically laid out with a door leading to the balcony at the front. The sunny living room at the back provides direct access to the sunny balcony.
The largest bedroom adjoins the balcony and is currently in use as a separate dining room/home office and has sliding doors to the balcony. The two spacious bedrooms are located at the front of the complex.

Alles dichtbij:
Wonen aan de Burgemeester Bloemersweg betekent wonen in een van de prettigste stukjes van Arnhem-Noord. Je zit hier rustig, maar wel vlakbij de stad en op loopafstand van winkels, horeca en openbaar vervoer. Park Klarenbeek en Park Angerenstein is om de hoek—perfect voor je ochtendwandeling of een picknick in het weekend. De wijk is groen, gezellig en goed bereikbaar, met volop parkeergelegenheid. Arnhem-Noord staat bekend om zijn karakter, historische charme en fijne sfeer. Het treinstation en de binnenstad zijn snel bereikbaar, net als uitvalswegen richting de A12 en A50. Even uitwaaien? De Veluwe begint praktisch in je achtertuin. Hier woon je niet alleen comfortabel, maar ook strategisch goed. Precies wat je zoekt.

Details:
Instapklaar 4 kamer-appartement
goed functionerende vve
3 slaapkamers, waaronder één royale slaapkamer met balkon
Moderne keuken met inbouwapparatuur
Moderne badkamer met inloopdouche
Zonnig balkon op het zuiden
Berging in de onderbouw
Centrale ligging in Arnhem-Noord
Nabij Hoogte 80, Park Klarenbeek, Park Angerenstein en Sonsbeekpark, diverse winkels en openbaar vervoersvoorzieningen
Goed onderhouden complex

Vraagprijs € 265.000,- k.k.
Acceptance by mutual agreement Read the full description

Floor plans

Transfer

Asking price
€ 265,000 k.k.
Status
Sold
Contribution VvE
€ 167,80 per maand

Construction

Object type
Lobby flat (apartment)
Type of construction
Existing construction
Construction year
1956
Type roof
Flat roof covered with bituminous roofing

Area and content

Living area
69 m²
Contents
227 m³
External storage space
6 m²
Building-related outdoor area
5 m²

Classification

Number of rooms
4 rooms (3 bedrooms)
Number of bathrooms
1 bathroom and 1 separate toilet
Bathroom facilities
Shower and washstand cabinet
Number of floors
4 residential levels
Located at
3rd residential zone
Provisions
Fiber optic cable, natural ventilation, and TV cable

Energy

Energy label
C
Energy label registration
03-06-2019
Isolation
Roof insulation, double glazing and floor insulation
Heating
CV boiler
Hot water
CV boiler
Boiler
Nefit (gas gestookt combiketel uit 2009, eigendom)

Outdoor space

Location
Aan bosrand, aan park, aan rustige weg, beschutte ligging, in bosrijke omgeving, in woonwijk en vrij uitzicht
Balcony / roof terrace
Balcony available

Mine space

Shed / storage
Ingress
Provisions
Electra

Parking facility

Type of parking facility
Public parking

VvE check list

Company Registration at KvK
Yes
Annual meeting
Yes
Periodic contribution
Ja (€ 167,80 per maand)
Reserve fund present
Yes
Maintenance plan
Yes
Saddle insurance
Yes

Energy consumption in Arnhem

Energy label this property

Energielabel C

Energy label publication: 03-06-2019

Annual electricity consumption

1960 kWh

(Average apartment in Arnhem)

Annual gas consumption

780 m³

(Average apartment in Arnhem)

* Figures are derived from CBS and are intended as an indication and may differ for this property

Mortgage costs indicator

Own contribution:
Savings / excess value

Interest:
Lowest 10-year interest rate

Lowest 10-year interest rate

2,75% - Centraal Beheer Groen... - NHG


3,04% - Argenta Groen Hypothee... - 80%

Lowest 20-year interest rate

3,18% - Argenta Groen Hypothee... - NHG


3,39% - Argenta Groen Hypothee... - 80%

Lowest 30-year interest rate

3,35% - Argenta Groen Hypothee... - NHG


3,56% - Argenta Groen Hypothee... - 80%


Mortgage:

Gross monthly expenses: € 0 p/m

Net monthly expenses: € 0 p/m

How do we calculate this?

The interest rate is based on the lowest 10-year fixed rate for a single mortgage part. The stated rate (2.75% met NHG) was verified on 10-11-2025. This calculation is based on an annuity mortgage that is fully repaid, with monthly payments remaining the same throughout the entire term. The actual interest rate and net monthly costs may vary depending on your personal situation and the mortgage provider. Consult a financial advisor for an accurate calculation and advice. No rights can be derived from this calculation; it is for indicative purposes only.

Documentation

Cadastral map

Living environment

Vragenlijst-appartement-2023

List-of-items

BAG extract

Visit our website

To make an offer

Download everything

Viewing solar limits

On the map

Residents of Arnhem

Statistics for postal code area 6823

Total number of inhabitants
6905 residents
Men
50%
Women
50%

Residents of Arnhem

Statistics for postal code area 6823

until 15 years
14%
15 to 25 years
9%
25 to 35 years
27%
45 to 65 years
31%
65 and older
19%

Households in Arnhem

Statistics for postal code area 6823

Single without children
48%
Multiple persons without children
24%
Households without children
72%

Households in Arnhem

Statistics for postal code area 6823

Households with one child
12%
Households with multiple children
16%
Households with children
28%

Homes in Arnhem

Statistics for postal code area 6823

Housing for 1945
53%
Houses between 1945 and 1965
27%
Houses between 1965 and 1975
2%
Houses between 1975 and 1985
7%
Houses between 1985 and 1995
1%

Homes in Arnhem

Statistics for postal code area 6823

Homes between 1995 and 2005
7%
Homes between 2005 and 2015
2%
Homes after 2015
1%
Rented apartments
70%
Purchase properties
20%

Other income Arnhem

Statistics for postal code area 6823

Average WOZ value
€ 188.000,-
People under 65 with disability benefits
19%

Other income Arnhem

Statistics for postal code area 6823

Addresses per square kilometer
1660
"Urbanity (scale 1 to 5)"
80%
Postcode kaart 6823 Gemeente kaart arnhem

If you have questions or would like to schedule a viewing, you can use the form on the right. You will then be contacted shortly thereafter.

Eusebiusbuitensingel 3

6828HS , Arnhem

026 - 388 2077 info@moniekkoenders.nl www.moniekkoenders.nl

Moniek Koenders Estate Agency

When I was 16 years old, during an exploratory internship, I got to know real estate through a small reputable office in Arnhem. Soon enough, I had the opportunity to work in the 'back office'. This was still a time when mobile phones and the internet were absent, but we would sit by the fax machine early in the morning waiting for the latest offers and informing buyers and sellers. My great enthusiasm was sparked! After finishing secondary school, I started the real estate training program and continued working at the same office where I did my internship. It's fantastic to be able to experience theory and practice side by side.

After taking the oath as an estate agent and valuer and joining the largest professional group of the NVM, I have now been in the profession for 30 years!

As I have been active for so long in Arnhem and the surrounding area in the purchase, sale, and valuation of homes, I am truly knowledgeable about Arnhem. Of course, I continue to develop myself and as a sideline activity, I have also been active as a mortgage advisor and was the first female chairwoman of the Arnhem branch of the NVM. Therefore, I know well what we are talking about together.

Looking for 'a new place to live' and 'selling your home' are life-changing moments that should not be underestimated. By tackling this together with straightforward advice and clear communication, we can achieve wonderful things. I also call this being active as your 'living coach' to jointly reach the desired goals. Your biggest asset deserves the right full attention!!

Driven by enthusiasm and market knowledge, we will embark on the paths together, and I will provide my advice as a 'housing coach' in the approach you desire.

If you have time for a no-obligation discussion, I would be happy to explain this further and we can discuss your future plans together.

See you soon!

Moniek Koenders
Moniek Koenders Estate Agency
Reviews Moniek Koenders Makelaardij

Burgemeester Bloemersweg 42 3, Arnhem

€ 265,000 k.k. - Sold

Helaas, deze woning is verkocht!

Net te laat, deze woning is al verkocht. Laat een zoekopdracht bij ons achter zodat wij u direct kunnen helpen wanneer er nieuw aanbod beschikbaar komt.